ReRender

Single Family Home,
Islamic Moorish
Original
Source Image
Uploaded
Generated(960x768)
source
2.64%
Result Images
Result Images

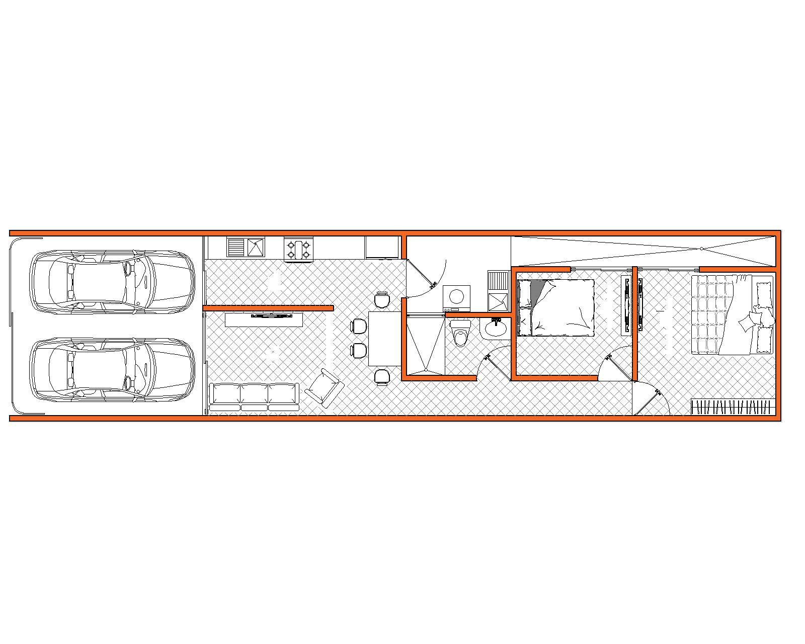
An incredibly lifelike, richly detailed, photorealistic floorplan photo of a single-family home with Islamic Moorish influences, shot from a high aerial perspective as if looking down from above. The scene is illuminated by crisp, even overhead lighting, creating a clear and functional atmosphere. Captured with a wide-angle lens, it emphasizes the entire layout of this long, narrow dwelling. The interior walls, rendered in a clean white, are outlined with subtle orange accents that frame the various spaces. To the far left, a double garage is depicted, with two sleek cars parked side-by-side, their forms suggesting smooth, metallic finishes. Adjacent to the garage is a living area, furnished with a contemporary grey sofa and a single armchair, suggesting a comfortable yet minimalist aesthetic. Beyond this, a kitchen area is delineated by a diagonal tile pattern on the floor, featuring an island with what appear to be modern appliances. Further into the home, a compact bathroom is visible with a toilet and sink. The rear section of the house is divided into two bedrooms; the first contains a large, neatly made bed, while the second, slightly larger, also features a bed and hints of patterned bedding, implying a tranquil sleeping space. The overall impression is one of efficient design and a blend of practicality with a touch of sophisticated style, highlighted by the consistent use of the grid-like tiling pattern throughout much of the living areas.


Use the extensionSketchUp
Follow usInstagramYouTubeLinkedIn
Join the discussionReddit