ReRender

Warehouse,
Ancient Chinese
Original
Source Image
Uploaded
Generated(768x1752)
source
2.83%
Result Images
Result Images
Result Images

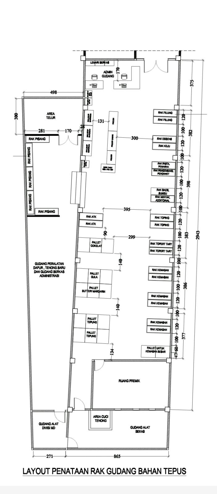
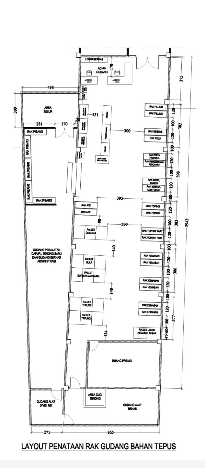
An incredibly lifelike, richly detailed, photorealistic 3D floor plan rendering of a bakery's raw materials warehouse, set in a clean, modern industrial-commercial environment. The scene is illuminated by bright, professional commercial lighting, creating a bright and organized atmosphere. Captured with a high-angle, bird's eye view perspective, emphasizing the precise layout of industrial blue steel shelves against a backdrop of realistic grey epoxy glossy floors and plain white walls. The rendering meticulously adheres to the technical layout provided, showcasing the spatial arrangement of different storage zones, including an "Area Telur" (Egg Area), various "Rak Pisang" (Banana Racks), a "Ruang Premix" (Premix Room), and designated pallet storage areas for items like "Gula" (Sugar) and "Tepung" (Flour). The overall composition is clean and functional, highlighting the efficient design of the warehouse for optimal material management in an 8k resolution, architectural photograph style.


Use the extensionSketchUp
Follow usInstagramYouTubeLinkedIn
Join the discussionReddit