Creative


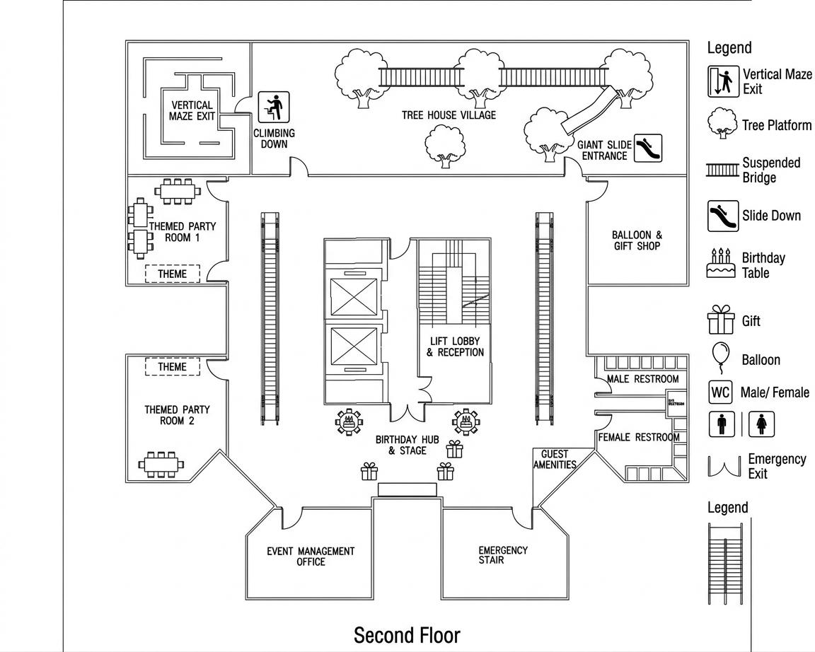
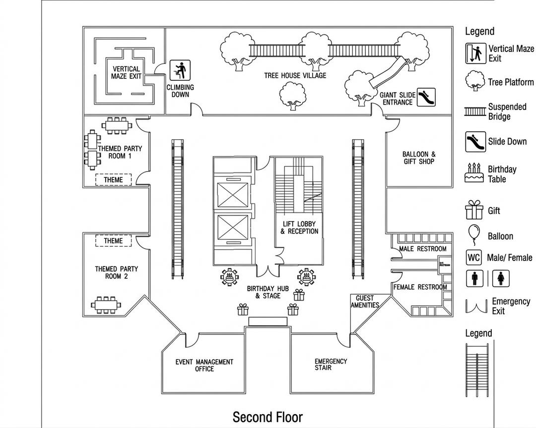
An incredibly lifelike, richly detailed, photorealistic floorplan photo of an indoor theme park's second floor. The scene is illuminated by diffused, midday summer light filtering through a cloudy sky, creating a bright yet even glow, typical of a large indoor space with expansive skylights or controlled artificial lighting, enhancing the eco-futurism aesthetic. Captured with a wide-angle lens, emphasizing the intricate layout and the interplay of various zones within the amusement park. The photograph presents a meticulously planned space, with clean lines and a sense of order. The dominant materials appear to be polished concrete or stone for the flooring, combined with exposed steel structural elements and white, minimalist wall finishes, all contributing to an eco-futuristic vibe. Subtle greenery is integrated throughout, from stylized trees in designated "Tree House Village" areas to potted plants, hinting at a sustainable design approach. On the left, two "Themed Party Rooms" are visible, each with tables and chairs suggesting recent activity or preparation for events. The labels are subtly integrated into the design, perhaps etched into wall panels or displayed on understated digital screens. Adjacent to these rooms are a "Vertical Maze Exit" and a "Climbing Down" area, depicted with stylized figures in motion, hinting at the adventurous activities available. The central area is dominated by the "Lift Lobby & Reception," a spacious hub designed for smooth flow. The reception desk is sleek and modern. Nearby, a "Birthday Hub & Stage" area is marked, complete with representations of birthday tables and decorative elements, suggesting a space geared towards celebrations. To the right, a "Balloon & Gift Shop" is clearly delineated, the imagery hinting at colorful merchandise and a welcoming retail environment. Further along, separate doorways lead to "Male Restroom" and "Female Restroom" facilities, followed by a "Guest Amenities" area. An "Emergency Exit" is also prominently marked, with clear signage reinforcing safety protocols. The upper portion of the scene opens up to an area labeled "Tree House Village," featuring stylized tree structures interconnected by suspended bridges and a prominent "Giant Slide Entrance." The depiction of these outdoor-themed elements within an indoor setting contributes to the unique amusement park atmosphere. Throughout the imagined photograph, the sense of scale is conveyed by the detailed annotations of rooms and activity zones. The perspective pulls the viewer's eye across the expanse of the second floor, showcasing the various attractions and services. There's a subtle sense of depth, with elements in the foreground appearing sharper and those in the background softening slightly, mimicking a natural depth of field. The overall impression is one of a clean, modern, and engaging environment, designed to offer a futuristic yet fun-filled experience within the cityscape.