ReRender

School,
Sleek International
Original
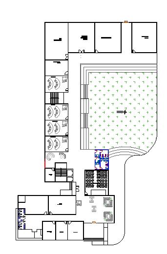
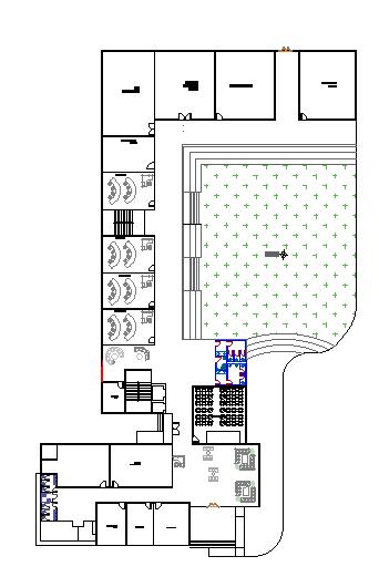
Source Image
Uploaded
Generated(768x1176)
source
1.52%
Result Images
Result Images
Result Images
Show more

An incredibly lifelike, richly detailed, photorealistic 3D axonometric view of an architectural floor plan, reimagined as a sleek, modern school building. The scene is illuminated by a soft, diffused daylight, creating a clean and professional atmosphere. Captured with a wide-angle lens, emphasizing the intricate layout and clear separation of spaces. The building's exterior is defined by smooth grey walls of uniform thickness, offering a minimalist aesthetic. Interior spaces are rendered in a light beige with a subtle, modern texture, suggesting a welcoming and contemporary environment. Room labels are integrated seamlessly, remaining crisp and readable against the flooring. The overall rendering is sharp, neat, and well-contrasted, presenting a humanized and photoshopped vision of the architectural design.


Use the extensionSketchUp
Follow usInstagramYouTubeLinkedIn
Join the discussionReddit