ReRender

Apartment Complex,
Sleek International
Original
Source Image
Uploaded
Generated(1784x768)
source
0.76%
Result Images
Result Images
Result Images

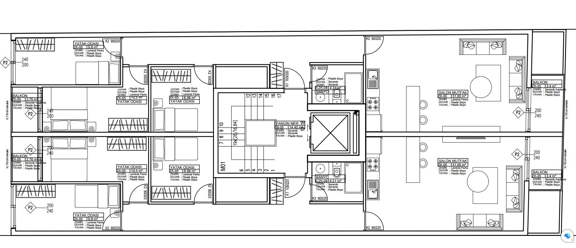
An incredibly lifelike, richly detailed, photorealistic overhead blueprint shot of an apartment floor plan set in a sleek, international coastal apartment complex. The scene is illuminated by crisp, even lighting, creating a clean and functional atmosphere. Captured with a wide-angle lens, emphasizing the organized layout and precise architectural details. This shot meticulously outlines each unit, showcasing a series of bedrooms with wardrobes, compact bathrooms, and combined salon-kitchen areas. The flooring is specified as laminate parquet in the living spaces and bedrooms, with ceramic tiles in the bathrooms. Balconies are clearly delineated, offering a glimpse of potential outdoor space. The central staircase core is prominent, and fire escape routes are indicated with clear numbering. The overall impression is one of modern, efficient living, designed to maximize space and light, hinting at a rainy spring day outside, characteristic of a coastal environment.


Use the extensionSketchUp
Follow usInstagramYouTubeLinkedIn
Join the discussionReddit