ReRender

Single Family Home,
Industrial Chic Townhouse
Original
Source Image
Uploaded
Generated(1088x768)
source
3.93%
Result Images
Result Images
Result Images

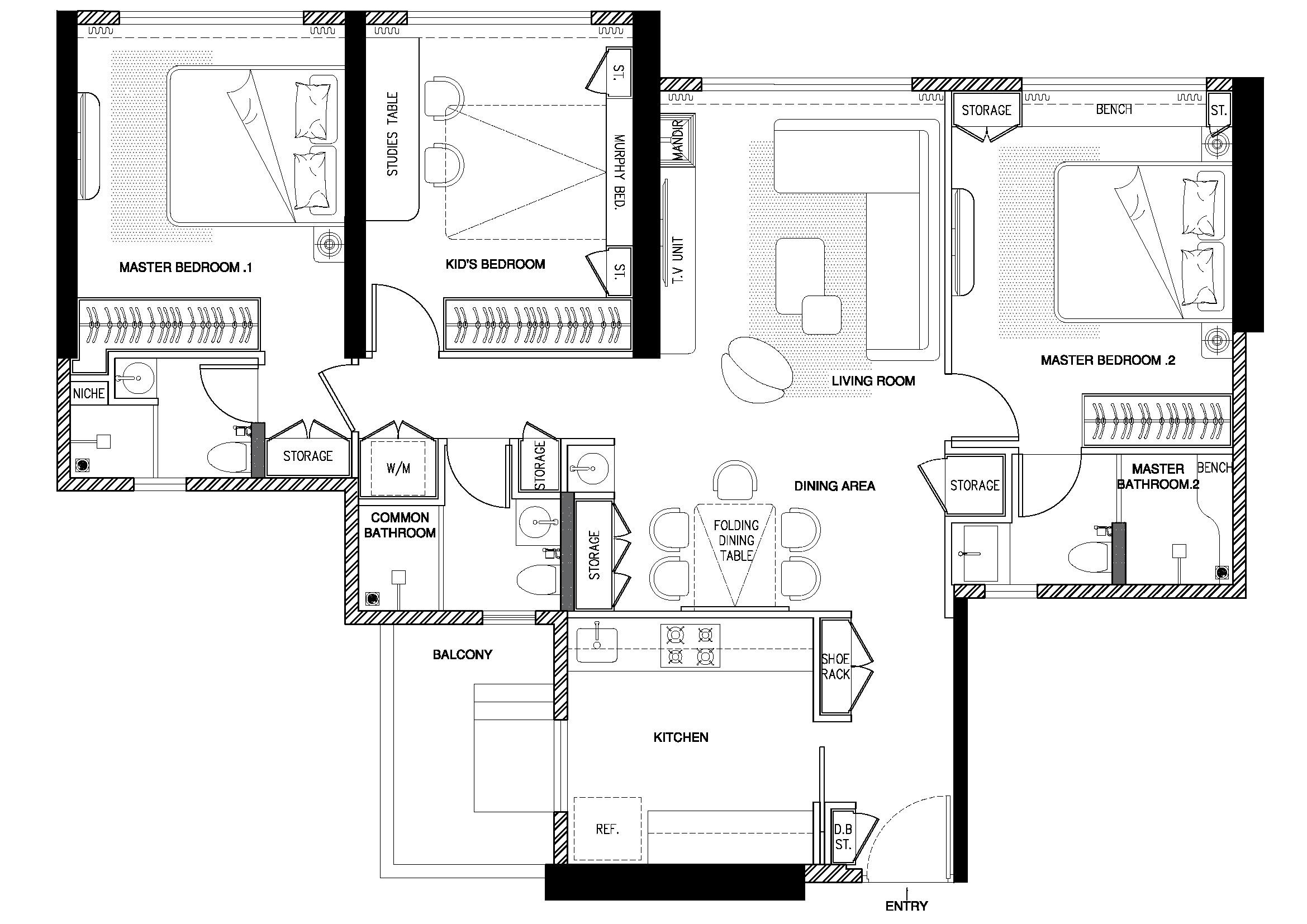
An incredibly lifelike, richly detailed, photorealistic floorplan of a multi-level single-family home with an industrial chic townhouse aesthetic. The scene is illuminated by clean, diffused studio lighting, creating a bright and functional atmosphere that highlights the architectural details and space planning. Captured with a wide-angle lens from a slightly elevated perspective, emphasizing the expansive flow of the layout and the intricate relationship between different zones. The imagined photograph showcases a modern, open-concept living, dining, and kitchen area, characterized by clean lines and implied minimalist furnishings. The bedrooms, each with an en-suite bathroom and ample storage, are clearly delineated, suggesting private retreats within the larger dwelling. Subtle textures, like the speckled patterns in the bedrooms and living area, hint at carpeting or rugs, while solid blocks indicate walls and built-in furniture. The overall composition effectively conveys the spatial organization, the intelligent use of space, and the potential for a sophisticated, contemporary lifestyle within this townhouse design. Decorative elements like the shoe rack near the entry and the folding dining table suggest a practical yet stylish living environment.


Use the extensionSketchUp
Follow usInstagramYouTubeLinkedIn
Join the discussionReddit