ReRender

Co-Housing Community,
Spanish Revival
Original
Source Image
Uploaded
Generated(768x816)
source
4.96%
Result Images

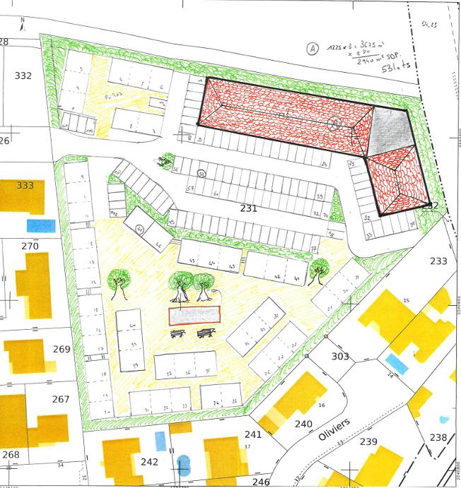
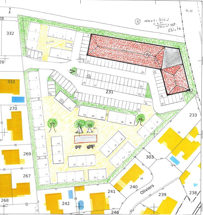
An incredibly lifelike, richly detailed, photorealistic aerial floorplan photo of a co-housing community in a Spanish Revival architectural style. The scene is illuminated by bright, overhead daylight, creating a clear and accessible atmosphere, typical of an architectural rendering. Captured with a high-altitude drone, emphasizing the intricate layout and the co-housing concept. The primary building, with its distinctive red-tiled roof and textured grey additions, dominates the center-right of the frame, bordered by a charcoal outline. Surrounding it, a network of marked parking spaces and pathways delineates individual plots. In the lower-left quadrant, a communal area is depicted with two stylized trees, picnic tables, and benches encircled by a red border, suggesting shared outdoor space. Surrounding buildings, rendered in sunny yellow with blue accents and dark grey roofs, are interspersed with meticulously drawn green hedges and trees, defining the boundaries and lushness of the community. The overall composition is a detailed, top-down view, showcasing the planned density, organized living, and the integration of green spaces within this unique residential development.


Use the extensionSketchUp
Follow usInstagramYouTubeLinkedIn
Join the discussionReddit