ReRender

Single Family Home,
Minimalisme Verrier
Original
Source Image
Uploaded
Generated(1672x768)
source
4.22%
Result Images
Result Images
Result Images

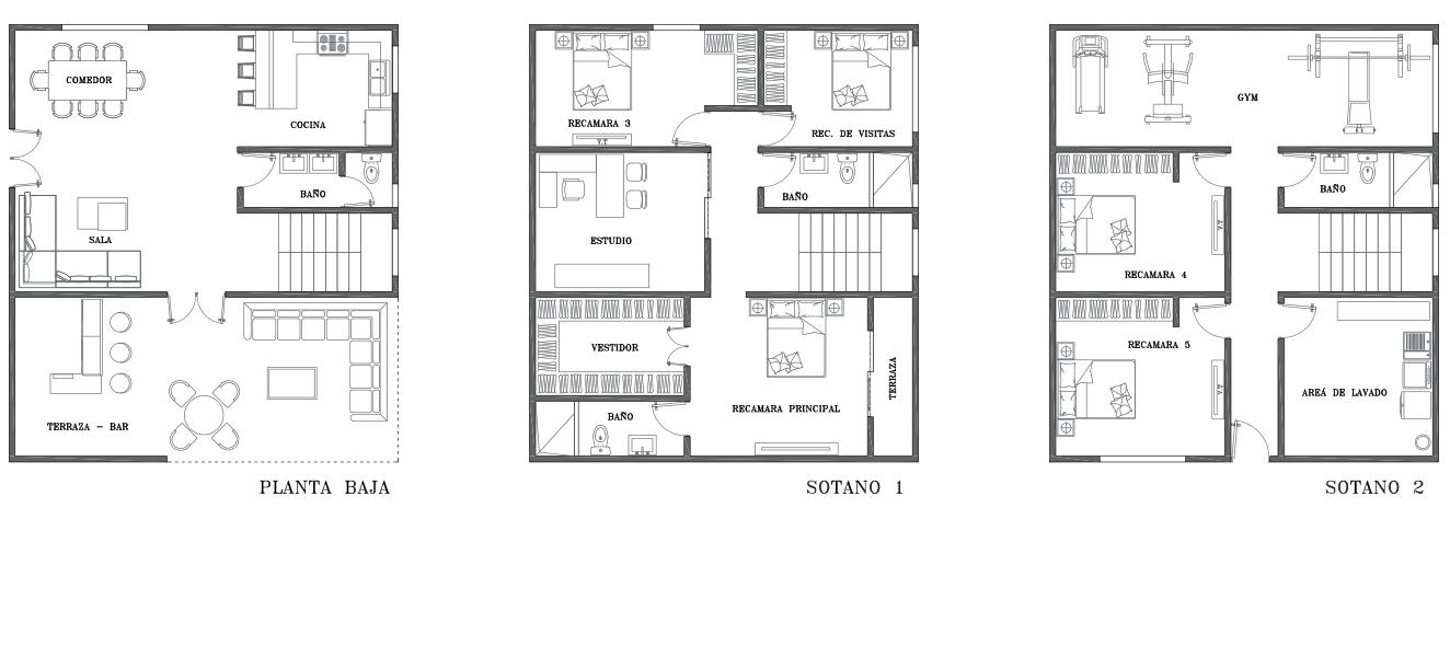
An incredibly lifelike, richly detailed, photorealistic **3D architectural floorplan photo** of a modern, single-family home, captured from a bird's-eye perspective as if looking down from above. The scene is illuminated by bright, midday spring sunlight, casting crisp shadows and creating a clear, airy atmosphere that suggests the home is nestled on the edge of a verdant forest. The design is distinctly minimalist and glassy, with clean lines and spacious, open-plan areas. On the ground floor ("Planta Baja"), a formal dining area with a large table and chairs is adjacent to a compact, well-appointed kitchen. A comfortable living room ("Sala") features a large sectional sofa and a coffee table, flowing into a spacious "Terraza-Bar" area with outdoor seating and a bar setup, hinting at abundant natural light streaming in through large windows. The subsequent levels, "Sótano 1" and "Sótano 2," reveal more private spaces. "Sótano 1" includes a master bedroom ("Recámara Principal") with an adjoining dressing room ("Vestidor") and bathroom, as well as additional bedrooms ("Recámara 3" and "Rec. de Visitas") and a study ("Estudio"). "Sótano 2" houses a home gym ("Gym") equipped with modern machines, two more bedrooms ("Recámara 4" and "Recámara 5"), and a laundry area ("Area de Lavado"). Throughout the imagined photograph, the minimalist aesthetic is evident in the uncluttered spaces and the implied use of sleek, refined materials. The clarity of the midday lighting emphasizes the geometric forms and the seamless integration of indoor and outdoor living hinted at by the terrace spaces. Captured with a wide-angle lens, the photograph offers a comprehensive view of the entire home, showcasing the sophisticated spatial planning and the peaceful integration with the surrounding forest environment.


Use the extensionSketchUp
Follow usInstagramYouTubeLinkedIn
Join the discussionReddit