ReRender

Pro Render.
Single Family Home,
High Tech
Original
Source Image
Uploaded
Generated(768x816)
source
1.16%
Show more

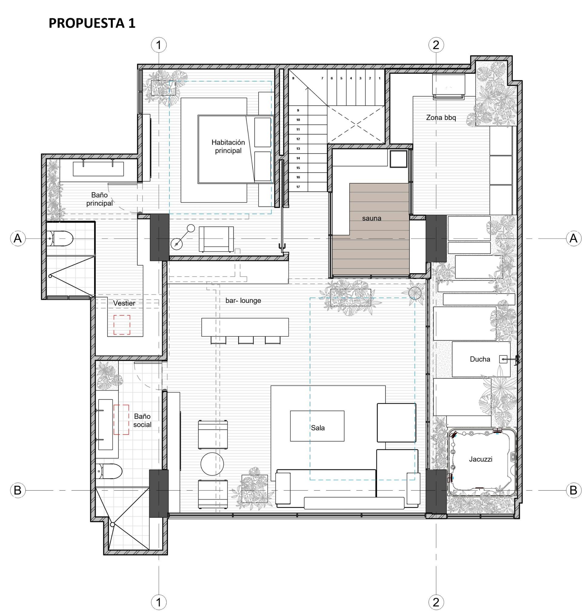
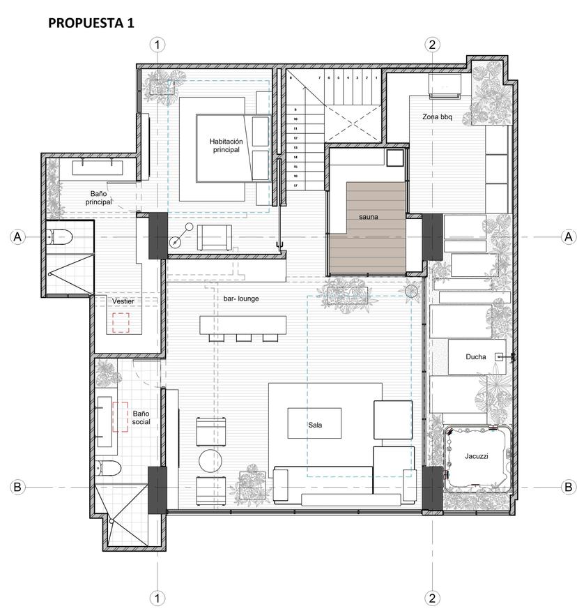
An incredibly lifelike, richly detailed, photorealistic floorplan photograph of a modern, single-family home interior with an outdoor oasis, captured during a breathtaking spring sunset. The scene is illuminated by the warm, golden hues of the setting sun, casting long shadows and creating a serene, inviting atmosphere. The photograph showcases a sleek, high-tech design with clean lines and a predominant use of natural wood textures, particularly on the decking and the sauna. The composition draws the eye across the expansive open-plan living space, highlighting distinct areas like the "Sala" (living room) furnished with a plush L-shaped sofa and minimalist coffee tables, and the adjacent "Bar-lounge" complete with a streamlined dining table and chairs. Beyond, the view extends to the luxurious "Habitación principal" (master bedroom), featuring a generously sized bed. To the right, the outdoor area unfolds, revealing the "Zona bbq" (BBQ area) with its modern grill, a refreshing outdoor shower ("Ducha"), and a bubbling "Jacuzzi," all surrounded by lush, tropical foliage that adds a vibrant splash of green against the warm wooden decking. The perspective suggests a bird's-eye view, allowing for a comprehensive understanding of the layout, with a shallow depth of field subtly blurring the furthermost elements to keep the focus on the immediate, inviting spaces. The overall impression is one of sophisticated indoor-outdoor living, meticulously designed for relaxation and entertainment, bathed in the soft, romantic light of late afternoon.


Use the extensionSketchUp
Follow usInstagramYouTubeLinkedIn
Join the discussionReddit